Proyecto de obra nueva en Roque del Conde con vistas espectaculares
Costa Adeje
venta: 1.700.000 €
Ref.1002 4 Habitaciones 5 Baños 282 m2 Piscina Privada
Descripción
Nos complace presentar Villa Jelena, un nuevo y exclusivo proyecto de lujo ubicado en Roque del Conde, una de las zonas residenciales más privilegiadas del sur de Tenerife. Esta área destaca por su tranquilidad, privacidad y espectaculares vistas al océano, además de su cercanía a El Madroñal y a las principales zonas turísticas de Costa Adeje.

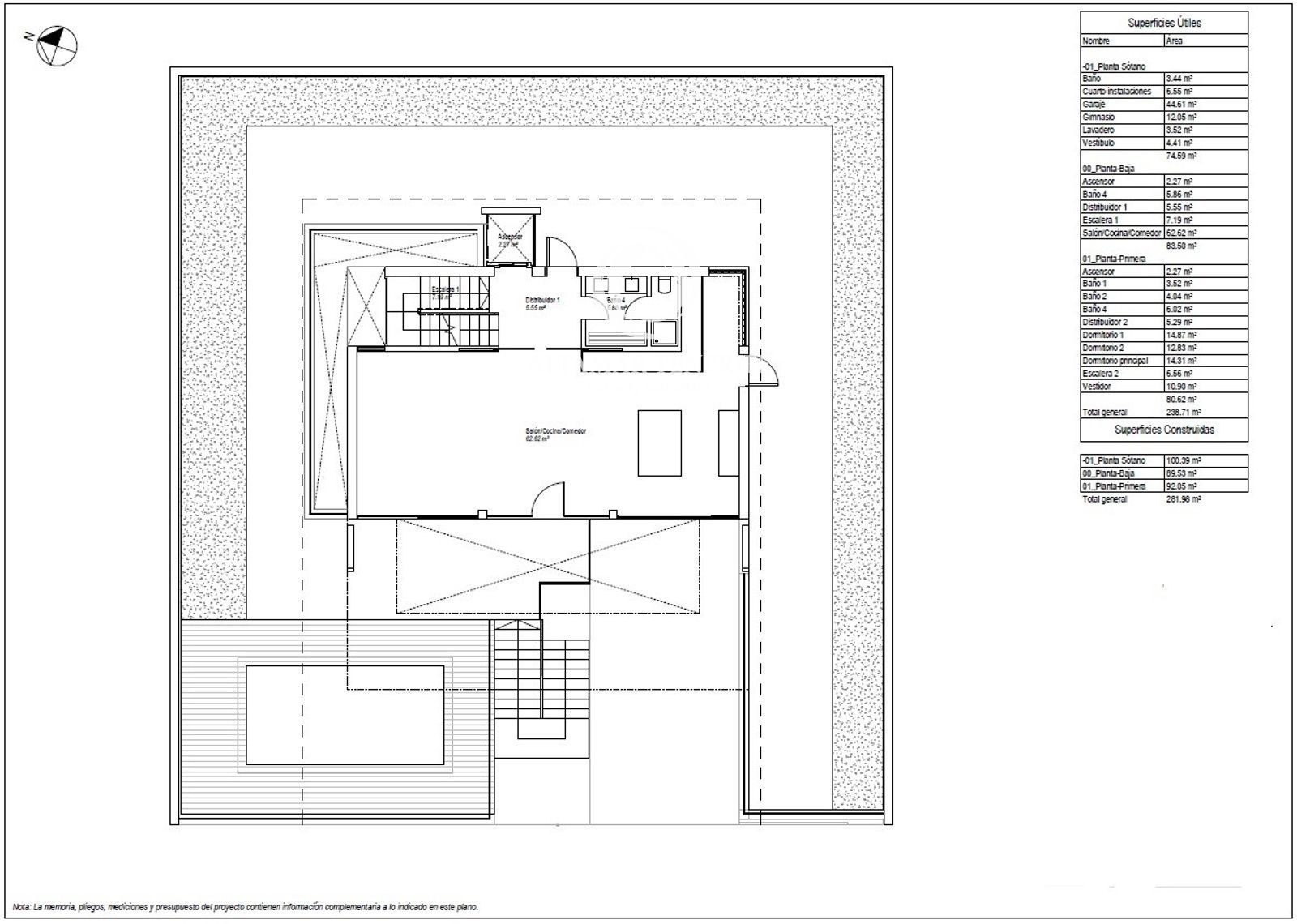
La villa, de diseño moderno y elegante, se desarrolla sobre una parcela de 506 m² y cuenta con una superficie construida de 282 m², distribuidos de forma funcional para garantizar comodidad, amplitud y luminosidad. Dispone de 4 amplias habitaciones y 5 baños completos, además de una piscina climatizada, aire acondicionado y vistas panorámicas al mar, que convierten cada espacio en una experiencia única.

La licencia de obra ya está obtenida, lo que asegura un proceso de construcción rápido y sin contratiempos. Forma de pago: 50% durante la construcción y 50% al finalizar la obra.

Villa Jelena es una oportunidad excepcional para quienes desean invertir en calidad de vida, en una ubicación exclusiva y con todas las comodidades de un hogar moderno.
Características
Precio Venta 1.700.000 €
Construidos 282 m2
Parcela 506 m2
Precio/m² 6.028
Dormitorios 4
Baños 5
Terraza
Estado Obra nueva
Aire acondicionado
Piscina privada
Calificación Energética (A) VER
Escalas de eficiencia


-
-

Contacto
 Sí, he leído y/o acepto las Condiciones de uso y la Política de privacidad
Ana Croitor (Venta)
Inmuebles similares
Costa Adeje
Villa en venta en Costa Adeje, con 240 m2, 4 habitaciones y 5 baños, Piscina, 2 plazas de Garaje, Trastero y Aire acondicionado.
2.730.000 €
Ref. 1481 4 Dormitorios 5 Baños 240 m2 Superficie
El Medano
Villa en venta en El Medano, con 100 m2, 3 habitaciones y 2 baños, 2 plazas de Garaje, Trastero y Amueblado.
565.000 €
Ref. 1477 3 Dormitorios 2 Baños 100 m2 Superficie
La Caleta
Villa en venta en La Caleta, con 529 m2, 5 habitaciones y 5 baños, Piscina, 4 plazas de Garaje, Trastero, Amueblado y Aire acondicionado.
4.750.000 €
Ref. 1459 5 Dormitorios 5 Baños 529 m2 Superficie
Contacto
Síguenos en: